20000m3d 應急污水處理項目技術方案(MBR 工藝)-來自鵬鷂集團
 |
|
1、項目概況
(1)項目性質:應急污水處理項目
(2)處理規模:20000m³/d
(3)出水標準:執行《城鎮污水處理廠污染物排放標準》(GB18918-2002)中的一級 A 標準
(4)設計考慮消毒、出水計量和其他輔助設施及附屬工程。污泥脫水至 80%含水率后外運處置。
2、裝配式污水廠(PPMI)介紹
根據提供的進出水水質指標要求,結合本項目的應急需求,要求使用年限不少于 5 年,未來可能拆遷或者回用,推薦采用裝配式污水廠(PPMI)。
2.1裝配式污水廠(PPMI)簡介
2.1.1裝配式污水廠(PPMI)研發背景
隨著科技的進步,鋼鐵冶煉技術的提升,環保及資源保護意識的增強,以及 人工成本的提高等因素,催生了用鋼結構取代混凝土建造各種建、構筑物。2016 年國務院發文要求各地推廣裝配式建筑,提出了裝配式建筑在建筑中的占比要求。
PPMI 是一種采用不銹鋼,工廠化預制、模塊化和集成化的裝配式污水處理廠。該系統的產生打破了傳統污水廠只能“建造”的觀念,使污水處理廠進入了“制造”的新時代。鵬鷂生產的 PPMI 裝配式水廠,具有施工周期短、使用壽命長、投資省、可拆建、可回收、占地小等優點。 |
2.1.2工程經驗及工作基礎
鵬鷂環保創立于 1984 年,一直專注于水處理領域的事業,其進程中不斷創新,與時俱進。
經過 37 年的持續創新和專業化經營,鵬鷂集團已成為一家集研發設計、設備制造、工程總承包、水務項目投資及運營管理于一體的,具有完善的產業鏈的環保企業。
早在 80 年代,鵬鷂就已開發出了集成污水處理系統,即 WSZ 地埋式污水處理設備。
(1)公司目前各類設計、建設、安裝資質齊全。
(2)集團通過 PPP、BOT、EPC 等形式,投資及承建各類水處理項目超過 500萬噸/天,投資總額超過 100 億。部分業績如下:
南昌 20 萬噸/天污水處理項目
周口 33 萬噸/天污水處理及回用項目
岳陽 22 萬噸/天污水處理項目
望城 12 萬噸/天污水處理項目
丹陽 14 萬噸/天鄉鎮污水處理項目蕭縣 5 萬噸/天工業污水處理項目南通 40 萬噸/天區域供水項目
長春一、三廠 47 萬噸/天區域供水項目羅ft縣污水處理及配套管網 PPP 項目哈爾濱市公濱污水處理廠工程
哈爾濱市阿什河污水處理廠工程
(3)鵬鷂智能智造園
為提升宜興環保整體的制造水平,經宜興市政府批準, 鵬鷂環保在我國以發展環保產業為特色的國家級高新技術產業開發區-中國宜興環保科技工業園,設立環保設備智能化制造園區。
該園區總占地面積 30 萬平方米,廠房及辦公、研發用地 40 萬平方米,總投資 13 億元。該園區以鵬鷂環保為核心,吸引國內環保制造型企業,打造環保智能化裝備制造系統。
園區配有專業的加工設備及多條智能化生產線,所有環保設備設計、生產均采用數據化,任何環保裝備只需具有制造圖紙或數據,即可在短時間內高質量完成生產。
(4)PPMI“智造”生產線
2019 年鵬鷂環保全面升級環保設備生產線,引進智能化環保產品生產裝備, 優化傳統制造加工工藝,使環保設備生產過程自動化、可視化、互聯互通、實時調度、生產物料實時供需等,實現了車間的生產自動化、物流自動化、倉儲自動化。生產線全面覆蓋應用信息系統,從而實現從設計、加工、精加工、焊接、裝配、測試等全過程的數字化、智能化控制,整個制造過程品質可實現全程追溯。標準化環保裝備的制造工藝,有效提高了生產效率,全面保障環保設備的制造產能,實現環保行業裝備“智造”水平的整體提升。

開平板生產線 |

液壓成型生產線 |

自動焊接生產線 |

拼裝現場 |
2.2裝配式污水廠(PPMI)的核心技術
2.2.1工廠化預制
(1)工廠化預制:污水處理廠的構筑物均采用 304 不銹鋼,在工廠中生產出預制的組裝板塊及模塊化水處理單元。
(2)智能化生產:采用 PLM、MES 等數字化、智能化制造手段,結合高端加工裝備,組成全自動智能生產線,生產出高度標準化的高質量模塊拼裝部件。
2.2.2模塊化設計
(1)結構模塊化:所有構筑物的結構單元,均由標準模塑的結構板材組成。結構板塊采用具有專利的力學設計,達到輕質、省材、高強的目的。
(2)處理單元模塊化:通過研發各處理單元集成,能以處理單元的模塊化設計生產。各單元均可在工廠預制生產,大大提高了產品的穩定性,減少了現場組裝量。模塊化處理單元有:污水處理預處理單元、膜處理單元、深度處理單元等。
(3)信息化管理:
數字化設計:我司擁有 30 多年的水處理工程經驗,積累了大量的數據,各單元設計均建立了數字模型,只需輸入少量參數,即可快速完成方案及圖紙設計。
數字化生產及安裝:設計數據直接輸入至加工生產線,即可自動加工出所需的模塊及零件。所有零件標有條形數碼,只需掃碼即可獲知安裝位置及方式,使拼裝工作快捷、方便和精準。
數字化管理:裝配式水廠利用現代互聯網技術實現遠程智能管控,可根據運營參數變化,自動調整運營模式。并對累積的數據進行分析,不斷地優化運營模式,優化設計模型,最終達到“理想水廠”的目的。數字化概念在水廠中的應用, 將超越傳統的 BIM 建筑生命周期的理念。
2.2.3集成化結構
傳統的污水廠因其工藝的需要及結構的局限性,各個構筑物相對獨立,導致建造成本高、占地大且運營成本高。
集團結合 30 多年的水處理經驗,研發出具有專利、適合集成的構筑物單元,把整個水廠中能集成的構筑物集成為一個構筑物。一般預處理為一個單元,生化處理與沉淀池為一個單元,后處理為一個單元,整個水廠只需三到四個單元即可構成。大大節省了占地面積,降低了運營成本,提高了建設速度。
2.3裝配式污水廠(PPMI)的技術特點
(1)施工周期短
由于采用工廠模塊化自動生產,再運至施工現場組合拼裝,現場作業時間大大減少,且無需養護周期,可以比常規方法節省 70%-80%的工期。一個 10 萬噸的污水廠只需 90 天即可建成。
(2)使用壽命長
由于混凝土水工構筑物長期浸泡在水體中,并受水流的沖刷,導致混凝土滲水,鋼筋銹蝕膨脹,使混凝土表皮脫落,影響水池使用壽命。而裝配式水廠采用優質不銹鋼制成,結構強度高,耐腐蝕,大大增大了結構的使用壽命,減少了運營維護費用。
(3)建造質量高
因 PPMI 系統采用模塊化標準化生產制造,水廠建造質量容易保證,建造質量高。
(4)投資省
PPMI 系統建造的水工構筑物在相同池容下,可節省投資 20%-30%。同時,水廠又采用集成設計,減少了構筑物的結構用材,并可大大降低水廠的公建投資。因此,采用 PPMI 系統整體造價一般比傳統方式可節省 30%以上。
(5)重量輕、沉降小、可遠程運輸
PPMI 系統整個構筑物重量不足混凝土構筑物的 5%,構筑物沉降小。由于重量輕,只要幾個集裝箱或一架大型飛機,即可裝載一個污水廠,特別適合“一帶一路”工程項目。
(6)柔性結構,適合軟土地基
PPMI 系統為鋼結構材料制成,整體構筑物重量輕,結構為柔性結構系統, 能應對不均勻沉降,軟土地基只需簡單處理,即可成為構筑物基礎。
(7)水廠可拆卸移動、可回收
PPMI 系統采用裝配式結構,可拆卸移動,使污水處理廠的遷址不再成為難題。如需拆除,所有材料均可重復使用,全面提升資源利用率。
(8)綠色施工技術
由由于是工廠化預制,施工現場基本無建筑垃圾、揚塵、噪聲、道路散落等環境污染發生,可有效減少施工對環境的影響。
(9)占地面積小
由于采用集成化設計,大大節約了占地面積,一般可節省 30%以上的建設用地。
(10)封閉簡單、運營環境影響小
采用工廠化預制的鋼結構作為池體,加蓋方便,可建設成全封閉的污水處理系統,也可在池體上方及周邊覆土,并種植綠植,以提升污水處理廠的環境,提高污水的保溫效果,該方法更適用于北方地區水廠的建設。
(11)運營費用低
采用模塊化結構、集成化設計,大大減少了構筑物連接之間的水頭損失,泥、水回流更方便。可節省運營成本,提高運營效率。
(12)設計工作量小
PPMI 裝配式污水廠實質是一種裝備化水廠,設計院在設計時,只需標定位置,無需畫任何構筑物詳圖,設計工作量將減少至原來的 30%左右。
3、MBR 工藝
3.1工藝流程圖
本工程污水處理站采用“預處理+AAO+MBR”工藝。

MBR 工藝流程圖
3.2投資估算表
|
序號 |
工程或費用名稱 |
概算價值(萬元) |
建筑工程 |
設備購置 |
安裝工程 |
其他費用 |
合計 |
|
一 |
第一部分費用: |
|
|
|
|
|
|
1 |
101 細格柵、沉砂池、膜格柵 |
|
|
|
|
|
|
2 |
102 生化池 |
|
|
|
|
|
|
3 |
103MBR 池 2 座 |
|
|
|
|
|
|
4 |
109MBR 膜系統設備間 |
|
|
|
|
|
|
5 |
110 接觸消毒池巴士計量槽 |
|
|
|
|
|
|
6 |
111 綜合設備間 |
|
|
|
|
|
|
7 |
112 進水儀表間 |
|
|
|
|
|
|
8 |
113 出水儀表間 |
|
|
|
|
|
|
9 |
114 生物除臭裝置 |
|
|
|
|
|
|
10 |
201 污泥均質池 |
|
|
|
|
|
|
11 |
301 綜合樓 |
|
|
|
|
|
|
12 |
道路及廣場工程 |
|
|
|
|
|
|
13 |
綠化工程 |
|
|
|
|
|
|
14 |
圍墻 |
|
|
|
|
|
|
15 |
總平圖管線 |
|
|
|
|
|
|
16 |
電氣自控 |
|
|
|
|
|
|
17 |
通訊及監控設備 |
|
|
|
|
|
|
18 |
暖通設備空調 |
|
|
|
|
|
|
19 |
第一部分工程費用合計 |
|
|
|
|
|
說明:工程費用不含地基處理費。
3.3主要經濟指標
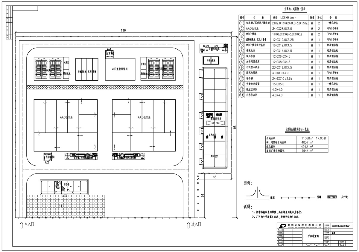
項目占地面積約 11368m²(17.05 畝,116×98m)。
工期:100 天。
總裝機功率:1000Kw
噸水處理總成本:1.31 元/m³ ,其中噸水處理經營成本:0.96 元/m³
配備人員情況:16 人
3.4年經營費用及單位制水成本
|
編號 |
項 目 名 程 |
基 本 數 據 |
|
1 |
平均日污水量(萬噸/日) |
2.00 |
|
2 |
電機等用電負荷(Kw) |
520 |
|
3 |
電機等設備效率 |
0.8 |
|
4 |
電費單價(元/度) |
0.62 |
|
5 |
變壓器容量 |
1600.00 |
|
6 |
污泥處理陽離子 PAM 投加量(噸/年) |
3.65 |
|
7 |
陽離子 PAM 單價(元/噸) |
32000 |
|
8 |
PAC 投加量(噸/年) |
146 |
|
9 |
PAC 單價(元/噸) |
2200 |
|
10 |
NaClO 溶液單價(元/噸) |
800 |
|
11 |
NaClO 溶液投加量(噸/年) |
780 |
|
12 |
檸檬酸投加量(噸/年) |
12.00 |
|
13 |
檸檬酸單價(元/噸) |
7000 |
|
14 |
生產、生活用水量(噸/天) |
25 |
|
15 |
自來水單價(元/噸) |
2.5 |
|
16 |
職工定員 |
16 |
|
17 |
人年均工資(元) |
60000 |
|
18 |
工程費用 (萬元) |
5340 |
|
19 |
固定資產基本折舊率 |
4.80% |
|
20 |
大修理費率 |
1.50% |
|
21 |
其他費用費率 |
6% |
|
|
年經營費用及單位制水成本 |
|
|
1 |
電費 |
279.70 |
|
2 |
水費 |
2.28 |
|
3 |
藥劑費 |
114.60 |
|
4 |
膜更換費 |
87.60 |
|
5 |
工資福利費 |
96.00 |
|
6 |
固定資產基本折舊費 |
256.32 |
|
7 |
大修理費率 |
80.10 |
|
8 |
其它管理費用 |
39.62 |
|
9 |
年經營成本 |
699.90 |
|
10 |
年總成本 |
956.22 |
|
11 |
噸水處理總成本(元/m³) |
1.31 |
|
12 |
噸水處理經營成本(元/m³) |
0.96 |
說明:運行費用不含污泥外運及處置費。
3.5平面布置圖